James Davis House - 215 Moore Street

From: Early Domestic Architecture in Beaufort, North Carolina - Summer Field Study 2011 - College of William and Mary & Colonial Williamsburg Foundation Dept. of Architectural and Archaeological Research (Klee and Lounsbury) - Images are Field Study drawings and photographs. CLICK IMAGES TO ENLARGE.

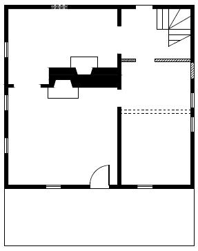
The two-story, timber-framed house at 215 Moore Street is known as the J. Davis House, named for its original owner who is said to be the builder of many other houses in Beaufort. It is a much altered dwelling dating to about 1830. The current plan consists of a three-room first story with a large rear addition constructed in the late 1990s. Although changed, the plan of the original house is still evident. It has a long rectangular-shaped chimney dividing much of the front and rear rooms. The construction of the chimney in this narrow shape, with flues side-to-side rather than back-to-back, may have been done to minimize its intrusion into the rooms, which are relatively small. The staircase to the second floor in the northeast corner of the original scheme was probably also rebuilt in a later renovation. A central doorway now opens directly into the largest heated room. The third room on the main floor was originally a small ten-foot square space in the front corner of the building, but has since been enlarged. Upstairs are at least two chambers, one of which was heated by a small fireplace.

Much of the original flooring on the main floor survives and has left ghosts of the position of earlier partitions. Several changes have been made on the main floor, especially in the small southeast room. Ghost marks running perpendicular to the current partition wall suggest an earlier partition wall, which closed off this room leaving a smaller front room. If the original stair this corner would have been a possible place for a winder stair similar in location to many other Beaufort houses.

The large front entrance room and the rear dining room both have fireplaces with masonry that has been plastered over. The floor boards, mostly pine, connecting the two rooms were slightly uneven and the location of an earlier partition wall separating them were several inches further to the northeast.

The roof framing consists of hewn and pit sawn rafters measuring 4 by 2 ½ inches spaced on two-foot centers and are joined by half lapped and pegged pine collars. They are mortised, tenoned, and pegged at their apex. The current owner left patches open during his renovations to allow viewers to see construction details. He explained that he saw cedar shingles which were pegged in place. If so, this is similar to the wooden pegs still in place at the Ward- Hancock House, a structure recently moved outside of town. It seems for the most part that this house, with its framing members, floor plan, and construction methods, could very well match its plaque date of 1829.


 RESEARCH by Mary Warshaw
James Davis House - circa 1829

About 1829 James Davis built this saltbox-style home at 215 Moore Street across from St. Paul's Cemetery. It remains unique in Beaufort with its center chimney, five fireplaces, and full above-ground basement that Davis used as his workshop.

During his lifetime James Davis built many homes in Beaufort’s historic district. James was an excellent carpenter and often referred to himself as an “arch-chi-tect.”

Even though the floors are 12-inch pine, the house was built as a practical, utilitarian one with few, if any, frills. It was built with no mantles. The original oyster-plaster walls were probably whitewashed.

Davis’ workshop in the above-ground basement has a truly interesting history. During and following the Civil War, it served as home to some of the Davis family, who lived in the one-room kitchen with its oyster shell floor and large fireplace. During the 1980’s Dr. Paul Getty, owner of the house at the time, hired a local shipwright excavate the basement. The shipwright was reportedly seen taking dirt out of the basement one bucket at a time. The basement area next to the kitchen was filled to the ceiling with dirt. The shipwright, using hand-made tools, paneled the walls and made cabinets with Carteret County heart of pine. The doors and trim are similar to what you would see in some of the wooden boats in Beaufort.


James Davis (1780-1861) Builder
Master Carpenter, Brick Mason and Cabinetmaker
Builder of the Duncan House and Many Other Beaufort Homes